• 31984
  • ID de propriété
  • Type de propriété
  • Terrain

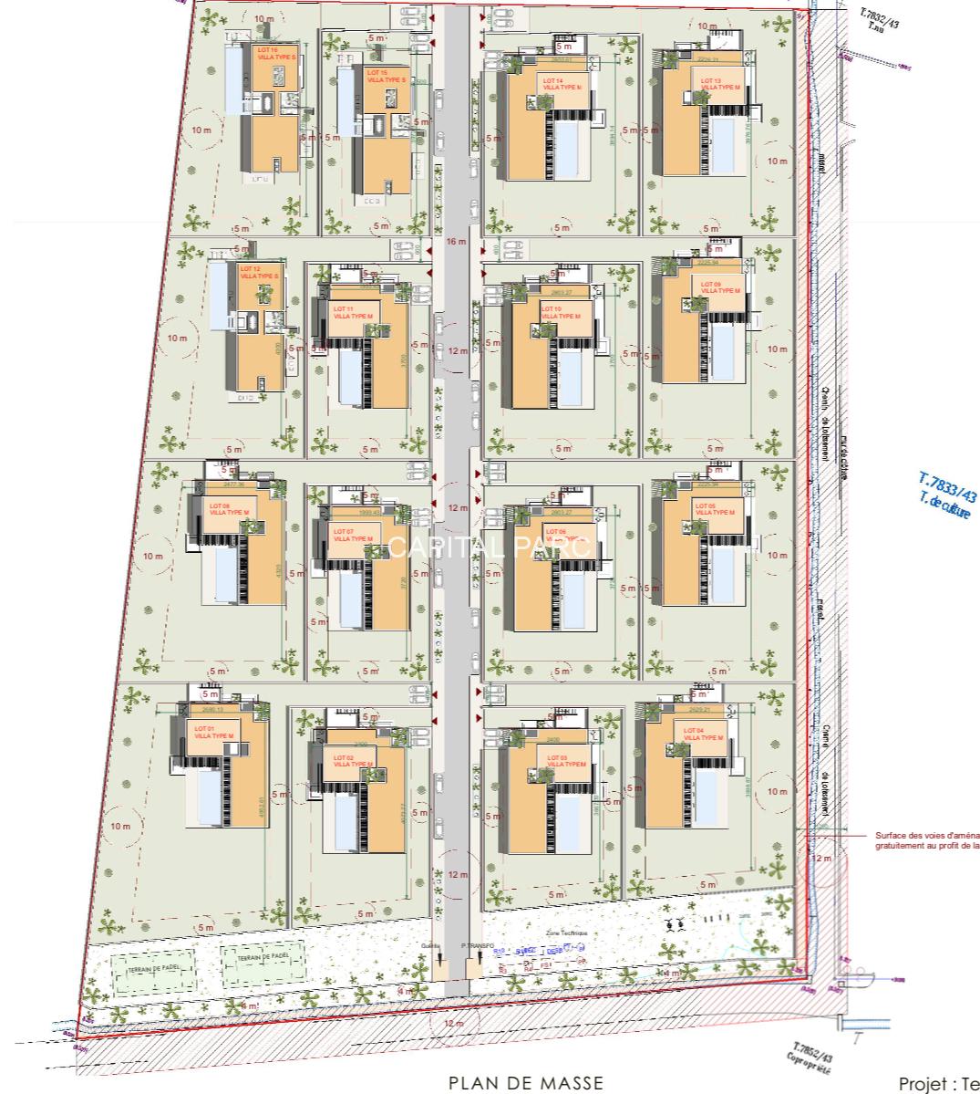
Terrain titré 3,8 ha avec projet de 16 villas

  • 6,000,000 Mad

Description

Nous vous proposons à la vente ce beau terrain titré d’une superficie de 3,85 ha situé sur la route de tahanaoute a seulement 16 minutes du centre ville de marrakech , terrain accessible avec une bonne piste de 1,5 km . Vue dégagée , zoné électrifiée , vue sur les montagnes, zone constructible avec des belles propriétés autour .
Terrain avec un projet de 14 villas .
Prix : 6 millions de dirhams par hectare

Adresse

Google Map
  • Adresse: Noria Golf Club, RN7, Tasoultante, caïdat de Tasoultante, cercle de Saada, Préfecture de Marrakech, Marrakech-Safi, 40054, Maroc
  • Ville: Tasoultante
  • État/comté: cercle de Saada
  • Zip/Postal Code: 40054

Details

Mis à jour le août 31, 2025 à 5:31 pm
  • ID de propriété 31984
  • Type de propriété Terrain
  • Statut de la propriété Vente

Caractéristiques

Compare listings

Comparer